CLEMENCE CHIROL Négociatrice
Télécharger la fiche

Bureaux 97 m²

Limoges (87000)
950 € / mois NAT * NAT : Non assujetti à TVA Référence 1371

A propos de ce bien

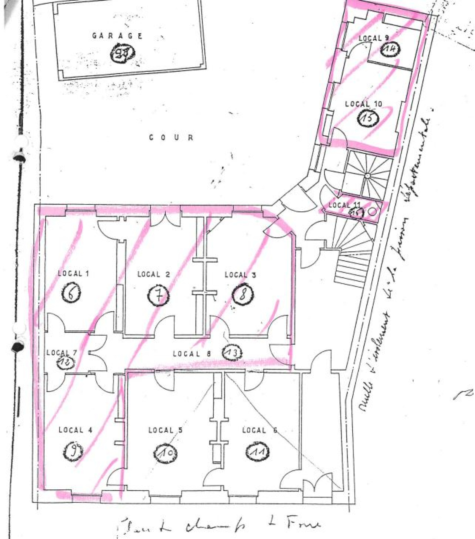
Local Professionnel situé au 17 Place Wiston Churchill à Limoges, situé en rez-de-chaussée d'une copropriété de bon standing, d'environ 97m², composé de 6 bureaux. 

Chauffage collectif gaz de ville. 

Disponible à compter du 14 juillet 2026. 

Caractéristiques de ce bien

Activités

  • Type de transaction Bureaux

Agencement

  • Superficie m2 97 m²

Equipements

  • Chauffage collectif : chaudière (gaz de ville)

Secteur

  • Code postal 87000
  • Ville Limoges

Diagnostics & compléments

  • Année de construction 1948

Diagnostics énergétiques

DPE
GES
DPE en cours

Informations financières

Loyer 950 € / mois
Honoraires charge locataire 2 736 €
Dont état des lieux 291 €
Dépot de garantie 1 900 €
Charges locatives (provision donnant lieu à régularisation annuelle) 350 €
Bail professionnel